方林家园作为城市新兴板块中的标杆住宅项目,自规划之初便以“全龄友好、舒适实用”为核心理念,户型设计上充分考虑不同家庭结构的生活需求,从刚需首置到改善改善型需求,均提供了多样化的选择,项目整体定位为“低密生态社区”,周边毗邻城市主干道,地铁3号线站点步行10分钟可达,周边涵盖幼儿园、小学、中学全龄教育资源,同时配建社区商业中心、城市公园及医疗服务中心,形成“5分钟生活圈”,其户型设计不仅注重空间布局的合理性,更在细节处融入人性化考量,旨在为业主打造兼具功能性与品质感的居住体验。
主流户型解析:从刚需到改善的全覆盖
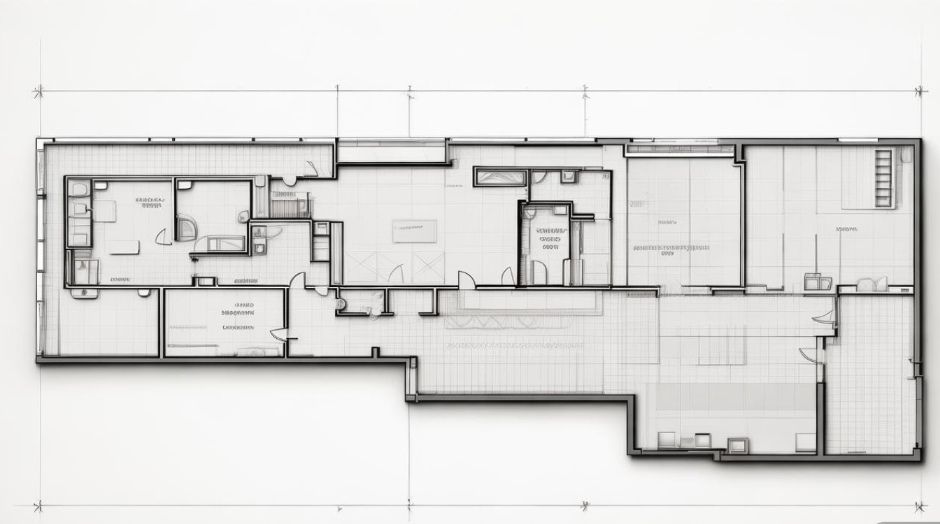
两房一厅一卫(建筑面积约75㎡):年轻家庭的“理想第一居”
该户型专为首置年轻夫妇或单身贵族设计,整体布局紧凑而不失舒适,入户处设置独立玄关,配备定制玄关柜,可收纳鞋帽、包袋及 seasonal物品,保持入户整洁,客餐厅一体设计,连接南向观景阳台,开间约3.6米,进深约4.2米,形成通透的LDK(客厅、餐厅、厨房)一体化空间,既增强家庭成员互动,也提升了空间利用率,厨房为L型操作台,预留冰箱位,动线符合“取-洗-切-炒”流程,避免操作交叉,主卧带飘窗(飘窗面积不计入产权面积),可改造为休闲区或收纳空间,次卧紧凑实用,适合作为儿童房或书房,卫生间采用干湿分离设计,配备智能镜柜和壁挂式马桶,节省空间的同时提升清洁便利性,该户型优势在于“小面积、低总价”,同时通过精细化设计实现“麻雀虽小,五脏俱全”,满足年轻群体对独立生活空间的需求。
三房两厅两卫(建筑面积约95㎡):二胎家庭的“成长型空间”
针对三口之家或二胎家庭,三房户型以“功能复合、空间灵活”为核心亮点,整体为南北通透格局,客厅开间约3.8米,连接南向阳台,阳台进深1.5米,可容纳休闲区、晾晒区及绿植区,满足家庭多样化需求,主卧套间设计,配备独立卫生间和步入式衣帽间,保障主人私密性;次卧均带飘窗,其中一个次卧可根据家庭需求灵活调整为儿童房、书房或老人房,适配家庭不同生命周期,餐厅与厨房相邻,餐客一体设计,可容纳6-8人就餐,节假日家庭聚会绰绰有余,厨房U型操作台,预留洗碗机和烤箱位,满足现代家庭对厨房电器的需求,卫生间采用双卫设计,客卫干湿分离,主卫配备浴缸和智能马桶,提升居住舒适度,该户型得房率约80%,通过减少公摊面积,最大化套内使用空间,是“一步到位”的改善型选择。
四房两厅三卫(建筑面积约135㎡):三代同堂的“品质改善范本”
四房户型定位高端改善,面向三代同堂或追求生活品质的大家庭,整体采用横厅设计,客餐厅开间约6.5米,面宽达4.5米,搭配南向大阳台(进深2米),形成270度采光视野,客厅与阳台之间无遮挡,空间感极强,主卧为“套房+衣帽间+独立卫浴”配置,衣帽间面积达4㎡,可满足男女主人衣物收纳需求;次卧中,一间设计为老人房,靠近客卫且门口无高差,方便老人起居;另外两间次卧均带飘窗,可分别作为儿童房和书房,书房连接北向生活阳台,可作为家庭办公区或储物间,厨房为岛台+操作台双设计,岛台可兼作早餐台或西厨区,满足家庭烘焙、亲子互动需求,卫生间采用三卫分离设计,客卫、主卫、老人卫各自独立,避免早晚高峰期拥挤,户型全屋预留新风系统和智能家居接口,包括智能灯光、窗帘、安防等,为业主打造“科技+舒适”的智慧生活体验。
户型设计共同亮点:细节处见品质
方林家园所有户型均遵循“全明、通透、实用”原则,在细节设计上体现人性化考量:
- 采光与通风:95%以上户型为南北通透,客厅、主卧、次卧均设置外窗,确保每个房间都有自然采光和通风;卫生间均设排风管道,避免潮湿异味。
- 收纳系统:全屋定制收纳柜,包括玄关柜、衣柜、阳台柜、厨房吊柜等,收纳率提升30%,减少家庭杂物堆积。
- 人性化动线:入户玄关设置缓冲区,避免开门见厅;客餐厅与卧室分离,形成“动区静区”分区,保障休息私密性;厨房靠近入户门,方便采购食材后直接进入厨房,减少污染带入室内。
- 适老化与适儿化:所有户型地面均采用防滑地砖,门洞宽度统一为0.9米,方便轮椅或婴儿车通过;卫生间设置扶手预留位,儿童房圆角设计,避免磕碰风险。
户型参数对比表
户型类型 | 建筑面积(㎡) | 套内面积(㎡) | 得房率 | 朝向 | 核心亮点 | 适合人群 |
---|---|---|---|---|---|---|
两房一厅一卫 | 75 | 60 | 80% | 南北 | LDK一体、飘窗收纳、低总价 | 年轻夫妇、单身贵族 |
三房两厅两卫 | 95 | 76 | 80% | 南北通透 | 主卧套间、双卫、灵活次卧 | 三口之家、二胎家庭 |
四房两厅三卫 | 135 | 108 | 80% | 南北横厅 | 横厅大视野、三卫分离、智能家居 | 三代同堂、高端改善 |
相关问答FAQs
Q1:方林家园的得房率如何?不同户型在空间利用上有哪些优化?
A1:方林家园整体得房率稳定在80%左右,高于市场平均水平,空间利用优化主要体现在三方面:一是减少公摊面积,如楼梯间、电梯井采用紧凑设计;二是通过“零浪费”布局,如飘窗、阳台等半赠送空间(符合规范不计入产权面积)提升实用率;三是定制化收纳系统,如玄关柜、衣柜根据户型尺寸定制,避免空间死角,例如75㎡两房户型,通过LDK一体化设计,将客厅、餐厅、厨房融合为多功能空间,即使小面积也能满足家庭日常活动需求。
Q2:方林家园的户型是否适合有老人和小孩的家庭?有哪些适老化和适儿化设计?
A2:非常适合同老人和小孩的家庭,适老化设计包括:全屋无高差地面,防止老人绊倒;卫生间预留扶手安装位置,马桶旁设紧急呼叫按钮;老人房靠近客卫且距离主卧较近,方便子女照顾,适儿化设计包括:儿童房采用圆角墙角,避免磕碰;飘窗可加装防护栏,保障安全;客厅预留游戏区空间,满足孩子活动需求;全屋采用环保涂料,通过国家绿色建材认证,确保儿童健康,社区内配建儿童乐园和老年活动中心,实现“家门口的全龄友好”。