北京廉租房作为保障性住房体系的重要组成部分,主要面向符合条件的低收入住房困难家庭,其户型设计始终以“经济实用、功能齐全、安全舒适”为核心原则,严格遵循国家及北京市关于保障性住房建设的相关标准,在有限的面积内,通过科学的空间规划,最大限度满足家庭的基本居住需求,让困难家庭“住有所居”的同时,也能感受到生活的便利与温馨。
北京廉租房户型设计的核心原则
北京廉租房的户型设计首先紧扣“保障性”定位,建筑面积严格控制在国家规定的标准内,通常单套户型面积在35-55平方米之间,以小户型为主,避免资源浪费,在此基础上,设计需兼顾“功能性”与“舒适性”:功能上需满足睡眠、烹饪、洗浴、储物等基本生活需求;舒适度则注重采光、通风、动线合理等细节,避免因面积小带来的压抑感,政策明确要求廉租房户型应采用大开间、小进深的设计,优先保证主要功能空间(如卧室、客厅)的采光,且厨房、卫生间等辅助空间需符合人体工程学,确保使用便捷,无障碍设计也是重要考量,针对老年家庭或行动不便者,部分户型会设置扶手、轮椅回旋空间等适老化设施。
常见户型类型及布局特点
北京廉租房以一居室、一居室带阳台、小两居室为主要户型,每种户型根据家庭人口结构(如单身、夫妻、三口之家等)进行差异化设计,以下通过表格列举典型户型及其核心特点:
户型名称 | 建筑面积(㎡) | 核心布局 | 适用人群 | 设计亮点 |
---|---|---|---|---|
一居室(紧凑型) | 35-40 | 入户玄关→客厅→卧室→厨房(开间)→卫生间(暗卫),客厅与卧室半隔断或一体化 | 单身青年、老年夫妻 | 空间高度集约,动线短;利用隔断增加隐私,厨房与入户门相邻,方便采购物品存放 |
一居室(带阳台) | 40-45 | 玄关→客厅(连接南向阳台)→卧室→独立厨房→明卫 | 单身带孩家庭、新婚夫妻 | 南向阳台增加采光与储物空间,明卫改善通风,卧室与客厅分体保证休息私密性 |
小两居室 | 45-55 | 独立玄关→客厅→次卧(朝北)→主卧(朝南)→厨房(L型操作台)→明卫 | 三口之家、三代同堂家庭 | 双卧室设计满足分居需求,主卧朝南保证主采光,厨房L型布局提升操作效率 |
户型设计细节解析
空间利用:向“零浪费”要面积
小户型最考验空间规划能力,北京廉租房户型普遍通过“复合功能”和“垂直收纳”实现空间高效利用,客厅与卧室采用“软隔断”(如推拉门、帘布、矮柜),可根据需求灵活切换空间属性;厨房多设计为“开放式”或“半开放式”,与餐厅或过道结合,减少墙体占用;墙面大量使用定制壁柜、吊柜,利用高处空间存放换季物品,地面则选用可抽拉储物床、带抽屉的餐桌等家具,实现“一物多用”。
采光通风:让“小空间”有“大通透”
为解决小户型采光不足的问题,设计上优先采用“全明布局”,即卧室、客厅、厨房、卫生间均能直接或间接采光,卫生间通过设置高窗或通风管道与室外连通,避免暗卫潮湿;客厅与卧室均朝南,阳台作为“采光缓冲区”,引入自然光的同时,形成空气对流通道,部分项目还会采用“大面宽、小进深”的楼栋布局,确保每户都能获得充足的日照。
动线设计:便捷不绕路
合理的动线能提升居住体验,廉租房户型通常以“入户动线-家务动线-居住动线”分离为原则,入户门直通玄关,避免客厅被穿行;厨房靠近入户门,方便采购后直接放入厨房,减少对客厅的干扰;卧室与客厅相对独立,保证休息区安静,卫生间多位于卧室与客厅之间,方便家庭成员使用,同时避免管线过长造成浪费。
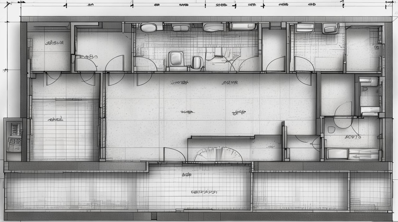
实际案例:某区廉租房40㎡一居室户型图解读
以北京市海淀区某廉租房项目的40㎡一居室为例,其平面布局如下:
- 入户玄关(约2㎡):设计L型鞋柜,顶部开放格用于放钥匙、口罩等小物件,底部留空放常穿鞋,节省空间。
- 客厅与卧室一体化(约18㎡):南向阳台连接客厅,阳台外侧设洗衣机位(预留上下水),内侧为休闲区;客厅与地面高差+沙发形成半隔断,卧室区域位于北侧,窗帘拉上即可形成独立空间。
- 厨房(约5㎡):一字型操作台,冰箱嵌入式预留位置,灶台、水槽、储物柜沿墙布置,动线为“取菜-洗菜-切菜-烹饪”,高效便捷。
- 卫生间(约4㎡):干湿分离设计,淋浴区用玻璃隔断,马桶上方设壁龛用于放洗浴用品,镜子带储物柜,兼顾实用性与干爽。
该户型通过“阳台多功能化”“厨房嵌入式设计”“卫生间壁龛收纳”等细节,在40㎡内实现了“麻雀虽小,五脏俱全”的居住功能。
廉租房户型装修建议
针对廉租房小户型,装修建议遵循“轻装修、重装饰”原则:墙面刷浅色乳胶漆(如米白、浅灰)增加空间感,地面选择浅色瓷砖或复合地板,提升亮度;家具优先选轻便、可移动的款式(如折叠餐桌、轮滑储物柜),方便调整布局;避免吊顶、复杂电视墙等压层高设计,利用射灯、灯带代替主灯,营造通透感。
相关问答FAQs
Q1:北京廉租房户型有哪几种常见类型?分别适合哪些家庭?
A:北京廉租房户型以一居室(35-45㎡)、小两居室(45-55㎡)为主,一居室适合单身青年、老年夫妻或新婚无孩家庭,功能紧凑、租金较低;小两居室适合三口之家或三代同堂家庭,可满足分居需求,主卧次卧分离保证生活私密性,具体选择需根据家庭人口结构、年龄构成及生活习惯确定,申请时可向住建部门咨询户型匹配建议。
Q2:廉租房户型设计中,如何解决小户型的收纳问题?
A:廉租房户型通过“垂直收纳+定制家具+复合空间”解决收纳难题,墙面安装通顶壁柜,利用高处存放换季衣物;厨房吊柜+地柜组合,收纳锅具、食材;卧室选带抽屉的储物床,床下存放被褥;阳台设置洗衣柜+储物架,兼顾洗衣与收纳;玄关、过道等“边角空间”用窄边柜、挂钩等零碎家具填补,实现“寸土寸储”,设计上避免过多实体墙,用柜体代替隔断,既分隔空间又增加储物功能。