明州院子作为近年来备受关注的低密住宅项目,其户型设计以“院落为核、居游共生”为核心理念,将传统院落文化与现代居住需求深度融合,旨在为改善型家庭提供兼具私密性与社交性的生活空间,项目位于宁波慈溪新城核心区,周边紧邻湿地公园与城市绿肺,容积率仅1.2,整体规划以新中式合院与叠院产品为主,户型面积覆盖180-260㎡,通过“前庭-中庭-后院”三进式院落布局,实现室内外空间的无缝流动,让居者在繁华都市中重拾“一宅一院”的生活诗意。
户型设计理念:院落与居住功能的共生逻辑
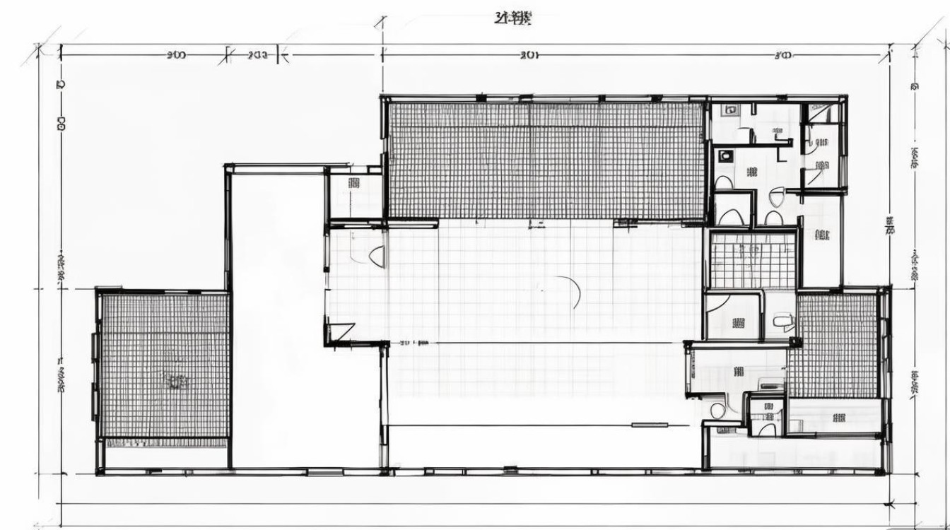
明州院子的户型设计突破传统住宅“房间堆砌”的模式,以院落空间为纽带,重构家庭生活场景,设计团队深入研究江南民居“四水归堂”的空间智慧,将庭院作为家庭活动的核心枢纽,串联起起居、休闲、收纳等功能区域,在动线规划上,采用“动静分区”原则:一层设置客厅、餐厅、老人房等公共空间,连接前庭迎客、中庭休闲,满足家庭聚会与日常社交需求;二层及以上则以主卧套、次卧等私密空间为主,通过后院与露台衔接,保障居住的安静与舒适,户型注重采光与通风的优化,普遍采用南向大面宽(约6.8-8米)、短进深(约12-14米)设计,确保主要功能间全天候自然采光,配合庭院形成“穿堂风”效应,提升居住健康度。
主力户型解析:从空间格局到细节打磨
表1:明州院子主力户型基本信息概览
户型类型 | 建面面积(㎡) | 房间配置 | 朝向 | 庭院/露台面积(㎡) |
---|---|---|---|---|
合院A户型 | 180 | 3室2厅2厨3卫 | 南北通透 | 前庭20㎡+中庭15㎡+后院10㎡ |
合院B户型 | 220 | 4室2厅2厨3卫 | 南北通透 | 前庭25㎡+中庭18㎡+后院12㎡ |
叠院C户型 | 260 | 5室2厅2厨4卫 | 南北通透 | 下叠庭院30㎡+上叠露台20㎡ |
合院A户型(180㎡):小户型的院落生活范本
作为项目最小户型,A户型以“紧凑实用”为核心,通过精细化设计实现空间利用最大化,一层为“公区+长辈房”布局:约6.8米面宽的客厅连接前庭,可作为会客或家庭活动区;中庭设置为半开放式庭院,搭配水景与绿植,形成“四季有景”的视觉焦点;餐厅与中西厨一体化设计,西厨岛台可作为简餐区,满足年轻家庭的烹饪需求;老人房位于一层,带独立卫浴与庭院出入口,方便长辈起居,二层为主卧套与次卧区:主卧配备步入式衣帽间、双台盆卫浴及南向飘窗,次卧预留儿童房功能,均连接后院露台,可打造为“空中花园”,整体户型虽面积适中,但通过三重院落空间,实现了“小空间大生活”的居住体验。
合院B户型(220㎡):改善型家庭的理想选择
B户型在A户型基础上升级为“四房两厅”格局,更注重家庭结构的扩展需求,一层亮点在于“双厅+独立佣人房”设计:约8米面宽的客厅与餐厅分而不离,既保持空间通透,又满足不同场景的使用需求;佣人房位于北侧,带独立卫浴与后勤出入口,保障主生活区的私密性;中庭扩大至18㎡,可设置户外茶歇区或儿童游乐区,二层为“主卧套+双次卧”布局:主卧套面积达20㎡,包含独立书房、衣帽间及观景浴缸,次卧均配备南向阳台;三层为家庭厅与多功能房,可设计为茶室、影音室或储藏室,连接20㎡露台,俯瞰院落全景,该户型通过“庭院分层+功能细分”,满足三代同堂或二孩家庭的居住需求。
叠院C户型(260㎡):叠院产品的空间升级
叠院作为项目的高端产品线,C户型通过“上下分层”设计实现空间功能的垂直分区,下叠主要为“公共+休闲”层:约50㎡的客厅挑高6米,搭配落地窗连接前庭庭院,庭院内设置水景与凉亭,可作为家庭宴请区;影音室、茶室等休闲空间位于负一层,带采光井设计,避免潮湿;上叠为“私密+起居”层:主卧套位于二层,带270度转角飘窗与独立露台,次卧均配备套间;三层家庭厅连接20㎡露台,可打造为空中农场或观景平台,该户型通过“庭院下沉+露台抬升”,实现上下叠空间的独立性与互补性,适合追求品质与私密性的高净值家庭。
户型亮点归纳:从“好房子”到“好生活”的进阶
明州院子的户型设计并非简单的空间堆砌,而是对“院落生活”的深度诠释:其一,院落功能化,前庭迎客、中庭休闲、后院种植,满足家庭不同场景需求;其二,尺度人性化,客厅面宽6-8米、主卧套面积15-20㎡,确保居住舒适度;其三,细节精细化,玄关预留收纳柜、卫浴干湿分离、阳台预留洗衣机位,提升生活便利性;其四,社区协同化,庭院与社区景观带衔接,形成“大社区-小院落”的空间层次,既保障私密性,又融入邻里社交。
相关问答FAQs
Q1:明州院子的庭院面积大概多少?不同户型的庭院设计有何差异?
A:明州院子庭院面积因户型而异,合院户型庭院总面积约45-55㎡(含前庭、中庭、后院),叠院下叠庭院面积约30㎡,上叠露台约20㎡,设计差异主要体现在功能划分上:合院A户型庭院紧凑实用,侧重日常休闲;合院B户型庭院面积更大,可增设水景与儿童游乐区;叠院则通过“下沉庭院+空中露台”实现上下叠空间分区,下叠庭院适合打造花园,上叠露台更适合观景与种植。
Q2:260㎡叠院的上下叠空间如何分配?适合什么样的家庭?
A:260㎡叠院采用“下叠公共+休闲,上叠私密+起居”的垂直分区:下叠约160㎡,含一层客厅、餐厅、庭院,负一层影音室、茶室、佣人房;上叠约100㎡,含二层主卧套、次卧,三层家庭厅与露台,该户型适合三代同堂或高净值家庭:下叠可满足长辈居住与家庭娱乐需求,上叠保障主人房的私密性,独立露台与庭院实现“各得其所”的生活状态,尤其适合注重空间独立性与院落体验的改善型客户。