无锡红星国际作为红星地产在无锡打造的标杆项目,凭借优越的地理位置、完善的社区配套及科学的户型设计,成为区域内备受关注的宜居选择,项目的户型规划覆盖刚需到改善型需求,从紧凑两房到舒适四房,每一款户型都注重空间利用率、采光通风及居住舒适度,充分满足不同家庭结构的居住需求,以下从项目概况、户型设计细节、主力户型解析及适配人群等方面,详细解读无锡红星国际的户型图亮点。
项目概况与户型设计理念
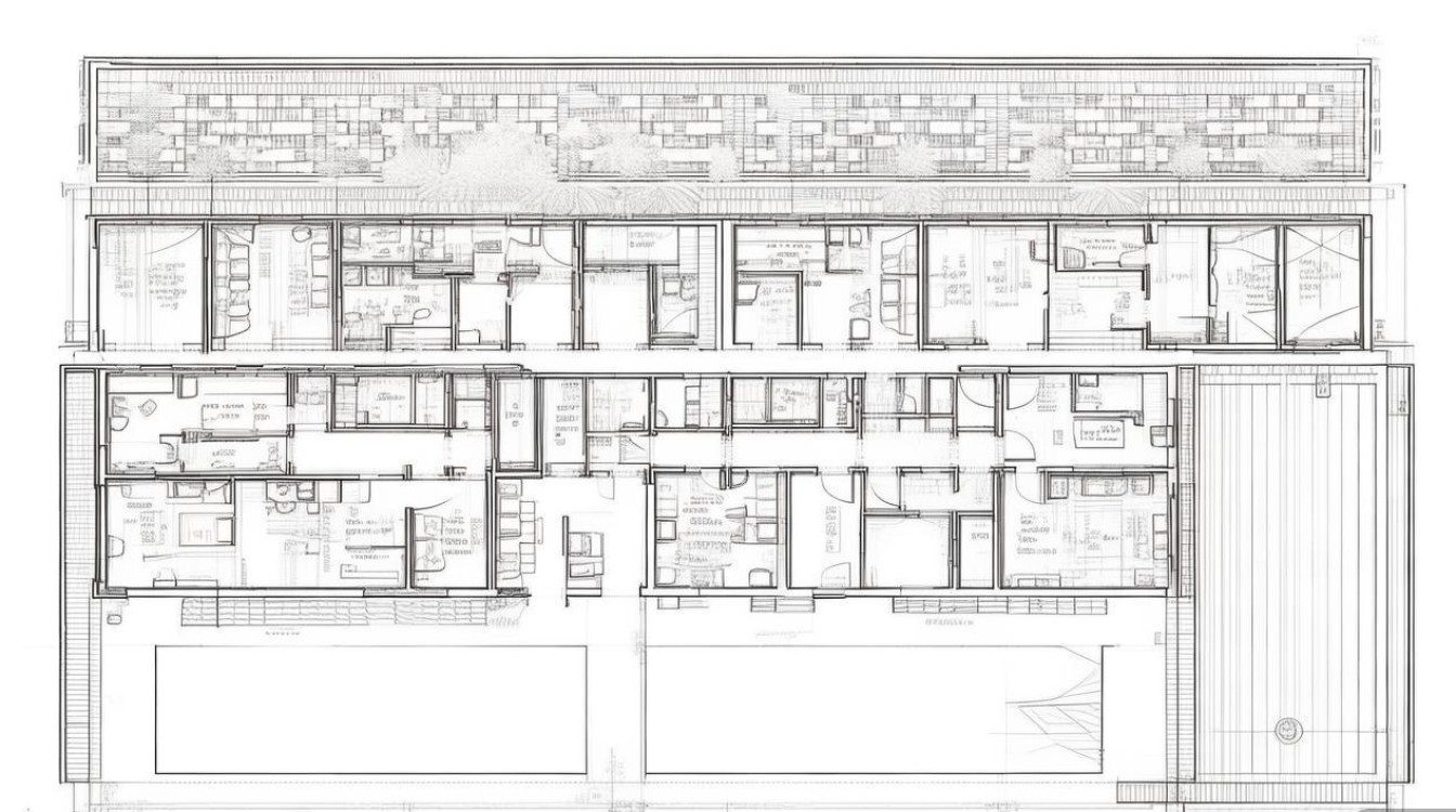
无锡红星国际位于无锡市滨湖区太湖新城板块,周边地铁1号线、4号线(规划中)环绕,紧邻太湖国际博览中心、海岸城商圈及金匮公园,交通、商业、生态资源得天厚厚,项目定位为“国际人文社区”,户型设计以“空间通透、功能齐全、动线合理”为核心,结合无锡本地居住习惯,强调南北通透、干湿分离、收纳充足等细节,旨在为业主打造“一步到位”的理想居所,整体得房率约85%,高于市场平均水平,让每一平方米都物尽其用。
主力户型参数与设计亮点
为直观展示不同户型的特点,以下通过表格对比无锡红星国际主力户型的核心参数:
户型面积 | 房间配置 | 朝向 | 核心亮点 | 适合人群 |
---|---|---|---|---|
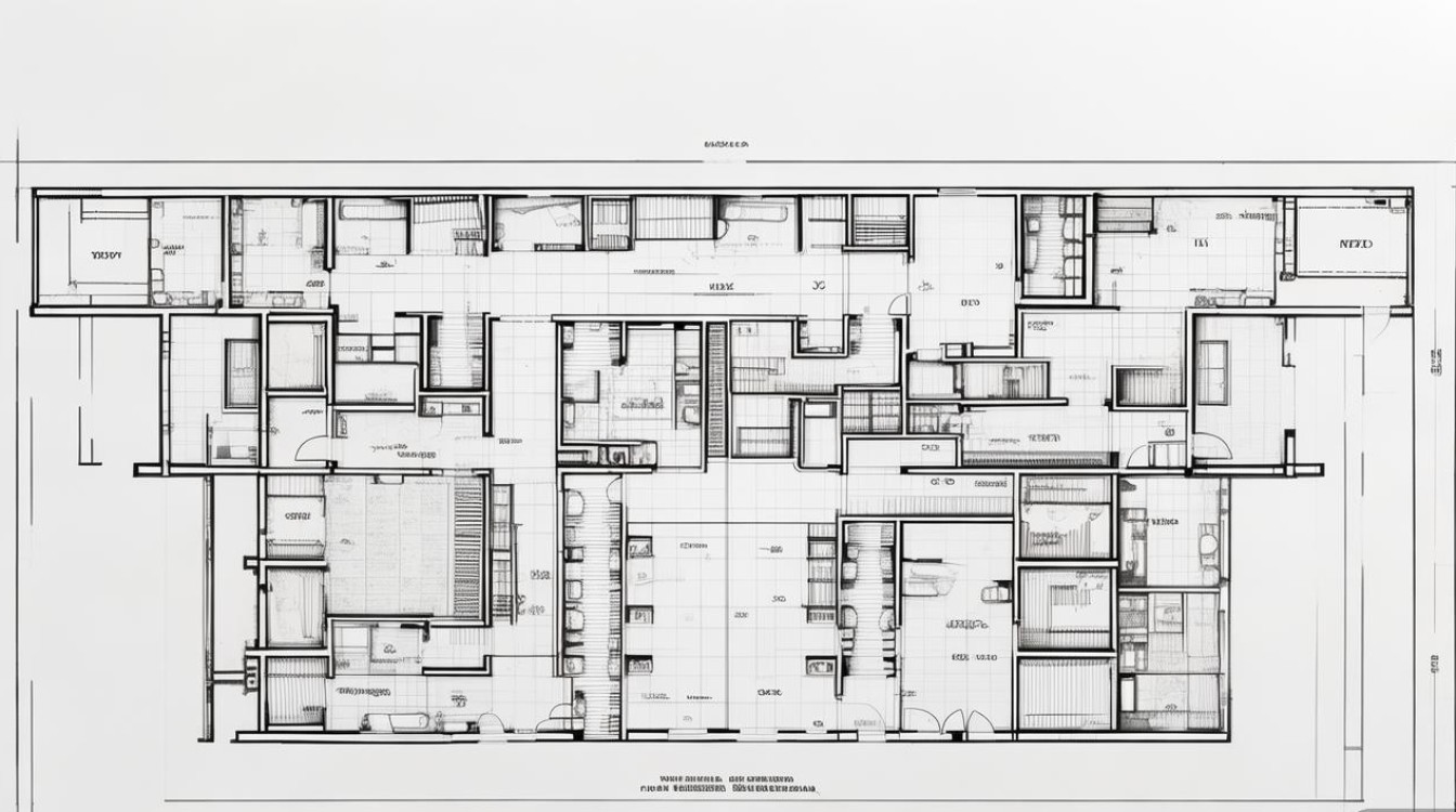
约89㎡ | 两室两厅一卫 | 南北通透 | 三开间朝南,U型厨房,主卧飘窗 | 刚需首置、新婚夫妇 |
约105㎡ | 三室两厅两卫 | 南北通透 | 餐客厨一体,次卧连通阳台,主套卧 | 三口之家、改善型 |
约128㎡ | 四室两厅两卫 | 南北通透+观景 | LDKB一体化,双阳台,主卧衣帽间 | 二胎家庭、三代同堂 |
约89㎡两房:刚需户型的“空间魔术”
作为项目最小户型,89㎡两房以“紧凑实用”为设计基调,整体布局方正,无冗余浪费,入户设计玄关柜,满足日常收纳需求;客厅连接南向约6米宽观景阳台,采光充足,视野开阔;餐厅与厨房相邻,U型操作台布局节省空间,同时实现“餐厨分离”,避免油烟干扰,主卧带飘窗,既增加室内采光,又可拓展为休闲区或梳妆台;次卧空间灵活,可作为儿童房、书房或老人房,卫生间采用干湿分离设计,提升使用效率,该户型总价可控,适合预算有限的刚需购房者,同时兼具一定的改善潜力。
约105㎡三房:刚改家庭的“功能全能款”
105㎡三房是项目主力户型,精准匹配“三口之家”或“二胎家庭”的居住需求,整体采用“动静分区”设计,公共区域(客厅、餐厅、厨房)集中布局,私密区域(卧室)相对独立,减少干扰,客厅面宽约3.8米,连接南向阳台,延伸空间感;餐厅与厨房一体化设计,方便日常用餐,同时预留冰箱位置;次卧连通北向阳台,可作为生活阳台,放置洗衣机、烘干机,兼顾实用性与观景性,主卧为套间设计,配备独立卫生间和飘窗,保障主人隐私与舒适度;次卧均预留衣柜位置,收纳空间充足,双卫生间设计,避免早晨高峰期拥挤,提升家庭生活效率。
约128㎡四房:改善型户型的“舒适标杆”
128㎡四房是项目的高端改善户型,主打“一步到位”的居住体验,整体采用LDKB一体化设计(客厅、餐厅、厨房、阳台、客厅一体化),打通公共区域界限,增强家庭成员互动;南向约7米宽大阳台,连接客厅和次卧,采光与视野俱佳,可打造成休闲区或小型花园,主卧配备独立衣帽间和卫生间,部分户型还带观景飘窗,尊贵感十足;次卧均设计为全明空间,其中一间可作为儿童房,配备学习区;另一间可作为老人房或书房,靠近卫生间,方便老人起居,双阳台设计,南向阳台观景,北向阳台生活,功能分区明确,该户型适合三代同堂或二胎家庭,满足多代人的居住需求,同时预留充足空间满足未来生活变化。
户型设计的整体优势
无锡红星国际的户型设计不仅注重单一户型的优化,更从社区整体规划出发,体现“以人为本”的理念,楼栋采用点式布局,确保每户均有良好采光与通风,部分户型实现“四明设计”(明客厅、明餐厅、明厨、明卫);室内层高约2.9米,空间感开阔,无压抑感;全屋采用品牌精装修交付,厨房配备方太三件套,卫生间科勒卫浴,省去业主装修烦恼;社区内部规划儿童乐园、健身跑道、邻里中心等配套,户型与社区环境相辅相成,提升居住幸福感。
不同人群的户型适配建议
- 刚需首置:优先选择89㎡两房,总价低、压力小,过渡性强,未来置换或出租均较灵活;
- 三口之家:105㎡三房是首选,功能齐全,空间适中,能满足孩子成长及家庭社交需求;
- 改善型/多代同堂:128㎡四房,大空间、多房间设计,兼顾独立性与互动性,适合追求品质生活的家庭。
相关问答FAQs
Q1:无锡红星国际的户型得房率如何?不同户型的公摊面积大概是多少?
A:无锡红星国际的整体得房率约85%,高于无锡市普通住宅80%-82%的平均水平,公摊面积主要包括电梯井、楼道、公共走廊及社区配套用房,其中小户型(如89㎡)公摊约15%,大户型(如128㎡)公摊约12%-13%,公摊控制合理,室内实际使用面积充足。
Q2:项目的128㎡四房户型是否适合有老人和小孩的家庭?在细节设计上有何考量?
A:非常适合,128㎡四房户型在细节上充分考虑了老人和小孩的需求:①全屋无障碍设计,门槛石高度降低,方便老人轮椅或儿童学步车通行;②次卧靠近主卧,方便家长照看孩子;③卫生间配备紧急呼叫按钮和防滑地砖,保障老人安全;④北向生活阳台可放置洗衣区,避免潮湿衣物影响公共区域;⑤社区规划有老年活动中心和儿童乐园,下楼即可休闲,无需远行。