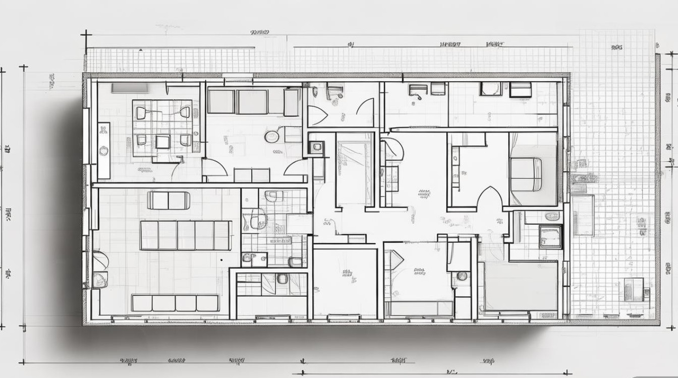
新都维也纳花园作为区域内备受关注的品质住宅项目,其户型设计以“自然、舒适、实用”为核心理念,融合维也纳典雅生活美学与现代居住需求,打造适配不同家庭结构的全生命周期产品,项目户型涵盖精致一居、温馨两居、舒适三居及阔绰四居,面积区间从45㎡到138㎡,兼顾刚需刚改与改善型需求,每个户型均通过精细化规划,实现空间利用率、采光通风与居住体验的平衡,以下从户型特点、空间设计及优势亮点三方面进行详细解读。
在户型布局上,项目强调“动静分区、干湿分离、全明通透”三大原则,以主力两居户型为例,建面约79㎡的经典两居,采用客厅、餐厅、卧室一字型动线设计,避免交叉干扰;南向面宽约3.8米,连接6米宽观景阳台,保证客厅与卧室的充足采光;厨房为U型操作台布局,预留冰箱位,符合烹饪动线;次卧与主卧分居客厅两侧,私密性良好,且主卧配备飘窗,可改造为休闲区或收纳空间,针对改善型需求,建面约125㎡的四居户型采用“双南向+三面宽”设计,四个卧室分居四角,避免对视;客厅与次卧共享南向大阳台,连接次卧的飘窗增加空间层次感;主卧为套房设计,含独立卫浴与步入式衣帽间,提升居住尊贵感;厨房与餐厅相邻,服务动线高效,且预留家政间位置,满足家务收纳需求。
空间细节上,项目注重“零浪费”设计,通过飘窗、角柜、玄关柜等多元收纳体系,提升空间实用性,所有户型均配备“多功能飘窗”,部分飘窗可拆卸,增加室内使用面积;玄关处设置顶天立地玄关柜,整合鞋帽、杂物收纳,底部留空区方便放置常穿鞋;卫生间采用下沉式设计,避免管道外露,且预留洗衣机位,适配小户型洗衣需求,项目层高普遍为3米,相较于市面上2.9米的常规层高,更增强空间通透感,吊顶后仍无压抑感。
为直观展示不同户型的核心参数,以下为部分主力户型信息对比:
户型类型 | 建面面积(㎡) | 房间配置 | 核心亮点 |
---|---|---|---|
精致一居 | 45 | 一室一厅一卫 | 南向卧室+阳台,厨房与客厅半隔断,空间灵活 |
温馨两居 | 79 | 两室两厅一卫 | 三面宽朝南,主卧飘窗,U型厨房,动静分区 |
舒适三居 | 108 | 三室两厅两卫 | 双南向卧室,客厅连接大阳台,次卧带独立飘窗 |
阔绰四居 | 125 | 四室两厅两卫 | 主卧套房,双卫设计,家政间预留,LDKB一体化客餐厨 |
新都维也纳花园的户型设计不仅满足基础居住功能,更通过人性化细节提升生活品质,所有窗户采用双层中空玻璃,有效隔绝噪音;卫生间配备防滑地砖与排气扇,保障安全;部分户型预留新风系统与中央空调管道,为智能家居升级提供便利,项目楼栋布局采用点式与板式结合,确保多数户型无遮挡视野,低楼层可享社区园林景观,高楼层则可远眺城市天际线。
相关问答FAQs
Q1:新都维也纳花园的户型有哪些增值设计?
A1:项目户型在增值设计上主要体现在三方面:一是“可变空间”,如飘窗可拆卸、阳台与客厅一体化设计,可根据家庭需求灵活改造;二是“智能预留”,部分户型预留新风系统、中央空调、智能家居控制面板管道,减少后期装修成本;三是“细节优化”,如玄关柜底部留空、厨房插座带防溅盒、卫生间暖风机预留位等,提升居住便利性与安全性。
Q2:不同户型分别适合哪些人群?
A2:项目户型适配多元需求:45㎡一居适合年轻单身或情侣,低总价、低压力,功能齐全;79㎡两居适合新婚夫妇或三口之家,空间紧凑实用,性价比高;108㎡三居适合二胎家庭或三代同堂,双卫设计避免早晚拥挤,次卧可作为儿童房或老人房;125㎡四居适合改善型家庭,主卧套房、独立书房/家政间等设计,满足高品质居住需求。