东欣高层项目位于城市新兴宜居板块,周边交通便利,商业、教育、医疗等配套日趋成熟,其户型设计以“空间为人服务”为核心,融合功能性、舒适性与美学性,针对不同居住需求精准规划了多样化产品,无论是首置青年、改善型家庭还是养老群体,均能在东欣高层户型中找到适配的生活方案,以下从户型分类、空间布局、功能细节、参数对比及特色创新等维度,全面解析其户型图设计亮点。
户型分类与面积段:精准匹配多元需求
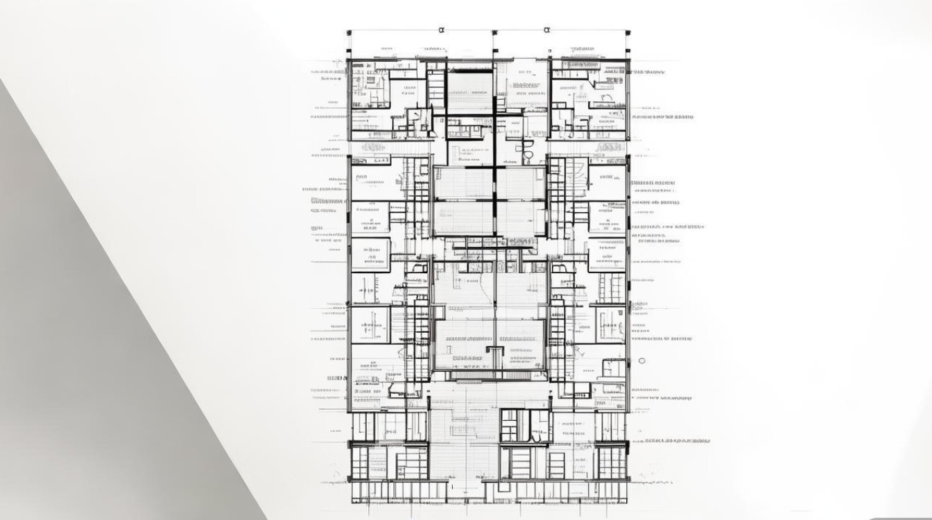
东欣高层户型涵盖一居室至四居室,面积区间从55㎡到170㎡,形成“小而精、全而适”的产品矩阵,一居室主力面积55-65㎡,主打单身贵族或新婚夫妇的独立生活需求,布局紧凑却不失舒适;两居室75-90㎡,面向刚需小家庭,强调空间灵活性与实用性,满足二人世界到三口之家的过渡需求;三居室105-125㎡,是改善型家庭的核心选择,以“三房两卫”为主力,兼顾成员独立性与互动性;四居室140-170㎡,定位多代同堂或高端改善,注重主私密空间与公共活动区的平衡,满足三代同堂的居住场景,不同面积段户型通过精细化设计,确保每个空间“物尽其用”,避免面积浪费。
空间布局核心亮点:功能与舒适的双重优化
空间布局是户型设计的灵魂,东欣高层通过“动静分区、干湿分离、公私分区”三大原则,实现居住体验的全面提升。
动静分区上,卧室区与客厅、餐厅、厨房等公共活动区明确分离,例如三居室户型中,卧室群位于户型内侧,远离入户玄关与客厅,减少公共活动对私密空间的干扰;而客厅、餐厅则集中布置在朝南采光面,形成“动区明亮、静区私密”的格局。
干湿分离体现在卫生间设计中,主卫普遍采用“三分离”布局(台盆区、淋浴区、马桶区独立),避免早高峰使用冲突;次卫则至少实现“淋浴与干区分离”,搭配防水推拉门,防止水汽扩散影响其他空间。
公私分区以玄关为界,玄关内侧为私人生活区,外侧为公共接待区,部分户型在玄关处设置缓冲区,可摆放鞋柜、换鞋凳,形成“回家-换鞋-归家”的仪式感,同时避免客厅隐私直接暴露。
功能分区细节解析:从“空间”到“生活场景”的转化
东欣高层户型不仅关注“面积分配”,更注重“场景适配”,每个功能分区都围绕具体生活需求展开设计。
客厅作为家庭核心活动区,开间普遍达到3.5-4.2m,搭配连接阳台的落地窗,确保日间采光时长超6小时,部分南向客厅还设置“观景飘窗”,可作为休闲角或临时收纳区,客厅与餐厅多采用“LDKB一体化”设计(客厅、餐厅、厨房、阳台连通),通过开放式布局增强空间通透感,同时为家庭聚餐、亲子互动提供充足场地。
卧室强调“舒适度与私密性”,主卧均朝南,开间3.3-3.8m,配备独立飘窗或阳台,部分改善户型主卧还设计为“套间”,包含独立卫浴与步入式衣帽间,满足主人对私密空间的需求;次卧则注重灵活性,可改造为儿童房、书房或客房,预留家具摆放空间。
厨房采用“U型”或“L型”布局,操作台面根据“洗-切-炒”动线设计,减少转身浪费;预留冰箱、洗碗机、烤箱等嵌入式电器位置,台面下方增设抽拉式储物篮,提升收纳效率;排烟系统采用“止逆阀+独立排烟道”,避免油烟倒灌。
阳台区分“生活阳台”与“观景阳台”,生活阳台连接厨房,用于洗衣、晾晒,配备上下水管道;观景阳台位于客厅外侧,宽度1.8-2.2m,可摆放绿植、休闲椅,部分高楼层户型还设置“270度转角阳台”,最大化引入城市景观或自然景观。
参数化数据对比:直观呈现户型核心优势
为更清晰展示不同户型的设计差异,以下以东欣高层四大主力户型为例,对比核心参数:
户型编号 | 建筑面积(㎡) | 套内面积(㎡) | 得房率(%) | 客厅开间(m) | 主卧进深(m) | 阳台面积(㎡) | 目标客群 |
---|---|---|---|---|---|---|---|
A-1 | 58 | 46 | 79 | 5 | 2 | 8 | 单身/新婚 |
B-2 | 85 | 68 | 80 | 8 | 5 | 0 | 刚需小家庭 |
C-3 | 118 | 94 | 80 | 0 | 8 | 2 | 改善型家庭 |
D-4 | 155 | 124 | 80 | 2 | 0 | 5 | 多代同堂 |
从表中可见,东欣高层得房率稳定在78%-85%,高于市场平均水平,主要归功于“无浪费”设计:户型方正,避免斜角、异形空间;部分户型通过“设备平台内收”“飘窗半赠送”等方式增加实用面积,例如A-1户型虽建筑面积仅58㎡,但通过合理布局,套内使用空间达46㎡,满足单身生活的储物与活动需求。
特色设计创新:细节处彰显人性化考量
东欣高层户型在细节处融入多项创新设计,提升居住品质。收纳系统上,玄关处设置“顶天立地鞋柜”,底部留空放置常穿鞋;卧室衣柜采用“衣柜+梳妆台”一体化设计,内部划分挂衣区、叠放区、抽屉区;厨房墙面安装洞洞板,可灵活悬挂厨具,释放台面空间。智能家居预留方面,全屋水电点位支持智能开关、安防摄像头、电动窗帘等设备接入,玄关预留智能门锁位置,卫生间配备防雾镜柜(带除雾功能),提升科技感。人性化细节包括:门槛石采用无障碍坡道设计,方便老人、儿童行走;窗户为双层中空隔音玻璃,隔噪达35分贝以上;卫生间地面做微坡排水,搭配地暖分水阀,确保冬季舒适度。
相关问答FAQs
Q1:东欣高层户型的得房率如何?是否赠送面积?
A:东欣高层得房率普遍在78%-85%,高于市场同类型产品,部分户型通过“飘窗半赠送”(飘窗深度小于0.6m,不计入建筑面积)、“阳台全赠送”(封闭阳台按一半面积计入),以及“设备平台内收”等方式增加实际使用面积,例如三居室户型赠送面积可达8-12㎡,进一步提升性价比。
Q2:不同户型之间的采光通风设计差异有哪些?
A:东欣高层户型以“南北通透”为主,多数户型客厅、主卧朝南,次卧、厨房朝北,形成空气对流;部分小户型因楼栋布局限制,采用“全南向”设计,通过大面宽落地窗保证采光,卫生间设置排风系统,确保通风效果,高楼层户型(15层以上)还强化了观景视野,通过“270度转角阳台”“落地窗+飘窗组合”设计,最大化引入自然光与景观资源,低楼层户型则通过加大窗地比(窗面积与地面面积比,不低于1/7)优化采光,避免树木或楼栋遮挡。