亿达春田蝶园作为大连高新园区标杆品质住宅项目,其户型设计始终以“以人为本”为核心理念,结合现代家庭居住需求与空间美学,打造出兼具实用性与舒适度的多元产品,项目户型覆盖建面约75-110㎡两房至三房产品,针对不同年龄段、家庭结构的居住场景,通过精细化空间规划、科学化功能分区,让每一寸面积都发挥最大价值,为业主提供“小空间大作为”的宜居体验。
户型设计亮点:从功能到细节的全维考量
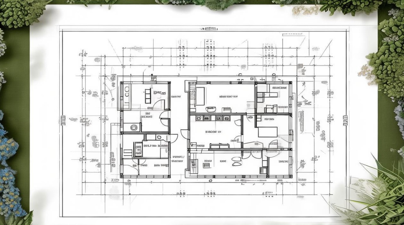
亿达春田蝶园的户型图在规划中充分考量采光、通风、动线三大核心要素,同时融入人性化细节设计,形成“明厨明卫、动静分区、收纳充足”的鲜明特点,以主力户型为例,其设计亮点可概括为以下四方面:
方正格局,利用率最大化
所有户型均采用“纯板式”布局,整体方正无浪费,避免“刀把形”“锯齿形”等异形空间带来的使用不便,例如建面约89㎡三房两厅一卫户型,客厅、餐厅、厨房呈“一字型”排布,空间通透无阻隔;主卧、次卧、书房分区明确,既保证私密性,又实现家庭成员的互动自由。
全明空间,采光通风双优
户型设计强调“每一间房都带窗”,客厅、卧室、厨房均设置外窗,其中客厅采用全景落地窗设计,开间达3.8米,搭配6米大阳台,不仅引入充足阳光,更形成“穿堂风”对流,提升居住舒适度,主卧均配备飘窗或观景阳台,部分户型飘窗可改造为休闲区或收纳区,兼顾实用性与美观性。
功能分区,适配全生命周期
针对不同家庭结构,户型功能灵活可变:
- 年轻家庭(75㎡两房):客厅与次卧之间采用可移动隔断,未来可改造为小三房,满足“二人世界”到“三口之家”的过渡;
- 改善家庭(110㎡三房):主卧套房设计,配备独立卫生间与衣帽间,次卧连接儿童活动区,兼顾老人、儿童不同居住需求;
- 三代同堂(89㎡三房):双阳台设计,生活阳台晾晒、观景阳台休闲互不干扰,客厅与餐厅一体化,为家庭聚会提供充足空间。
细节人性化,收纳与体验双提升
玄关处设置定制玄关柜,包含鞋柜、挂衣区、换鞋凳,满足日常收纳需求;厨房采用“U型操作台”布局,预留冰箱位、洗碗机位,动线符合“取洗切炒”逻辑;卫生间采用干湿分离设计,台盆区、淋浴区、马桶区独立,避免潮湿隐患;卧室门采用静音设计,保障休息质量。
主力户型参数对比表
为直观展示不同户型的特点,以下为亿达春田蝶园主力户型核心参数对比:
户型名称 | 建筑面积 | 房间配置 | 朝向 | 核心优势 |
---|---|---|---|---|
75㎡两房一厅一卫 | 75㎡ | 两室两厅一卫 | 南北通透 | 总价低、功能灵活,可改造小三房 |
89㎡三房两厅一卫 | 89㎡ | 三室两厅一卫 | 南北通透 | 动静分区明确,阳台连通客厅与次卧 |
110㎡三房两厅两卫 | 110㎡ | 三室两厅两卫 | 南向面宽大 | 主卧套房、双阳台,改善型首选 |
相关问答FAQs
Q1:亿达春田蝶园的户型得房率大概是多少?不同楼层是否有差异?
A:项目户型整体得房率约85%-88%,高于市场平均水平,其中小户型(如75㎡)得房率略高,因公摊面积较小;大户型(如110㎡)因配置双电梯、独立玄关等,公摊略增,但通过优化空间设计,实际使用率仍保持较高水平,楼层差异方面,低楼层(1-3层)因楼栋入口大堂设计,公摊略高于中间楼层,但采光、通风不受影响;高楼层(18层以上)视野开阔,部分户型可远眺山海景观,适合注重景观的购房者。
Q2:户型是否支持后期改造?比如阳台封窗或墙体调整?
A:项目户型设计预留了灵活改造空间:阳台均采用可开启式窗户,业主可根据需求封窗(需符合物业统一规范,不得影响外立面);非承重墙(如次卧与客厅之间的隔断)可敲除,改造为开放式空间或扩大客厅面积,但需提前向物业提交申请,由专业团队评估结构安全性,部分户型的飘窗、储物间等空间也支持功能调整,如飘窗可增加地柜变为收纳区,或铺设软垫变为休闲角,满足个性化需求。