南京金盾花园作为南京主城区内颇具代表性的成熟社区,其户型设计始终以“实用性与舒适性兼顾”为核心,充分考量不同家庭结构的居住需求,小区位于秦淮区瑞金路板块,周边配套完善,交通便利,距离地铁2号线西安门站步行约10分钟,周边有瑞金路商圈、南京市第一医院、瑞金北村小学等生活配套,为居民提供了便捷的生活环境,金盾花园的户型以70-140㎡的两房至三房为主,兼顾了刚需刚改及改善型需求,整体得房率较高(约82%-85%),空间利用率突出,下面将结合具体户型图进行详细解析。

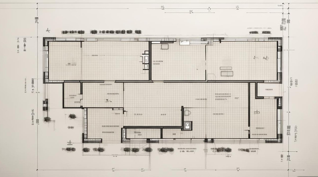
南京金盾花园户型图

户型分类及核心布局亮点

金盾花园的户型设计遵循“动静分离、公私分区、采光通透”的原则,通过科学的动线规划与空间布局,让每个功能区都发挥最大效用,以下按面积段及功能类型分类介绍典型户型:

刚需两居室(70-90㎡)

该面积段户型以“紧凑实用”为特点,适合新婚夫妇或小家庭,核心优势在于总价可控且功能齐全,以78㎡经典两房为例(以下均为建筑面积),户型为两室两厅一卫,南北通透设计:

  • 布局解析:入户为独立玄关,设置玄关柜满足收纳需求;客厅与餐厅相连,形成LDKB(客餐厨阳台)一体化动线,空间感开阔;南向次卧带飘窗,可作为儿童房或书房使用;主卧位于北侧,带私密飘窗,保证休息安静;厨房为U型布局,操作动线流畅,预留冰箱位置;卫生间干湿分离,配备排气窗。
  • 亮点:三开间朝南(客厅+次卧+阳台),采光充足;飘窗设计增加空间利用率,后期可改为储物柜或休闲区;动静分区明确,公共活动区与休息区互不干扰。

改善型三居室(110-140㎡)

针对三代同堂或二孩家庭,该面积段户型更注重功能拓展性与居住舒适度,以125㎡三房两厅两卫为例:

  • 布局解析:入户玄关扩大至4㎡,设置鞋柜与换鞋凳;客厅开间达4.2米,连接6米宽观景阳台,视野开阔;餐厅与厨房相邻,中厨与西厨(预留操作台)分离,满足多样化烹饪需求;三个卧室均带飘窗,主卧为套间设计,含独立卫生间与步入式衣帽间;次卧分居两侧,保证孩子或老人的隐私性;公卫采用三段式分离,方便早晚高峰使用。
  • 亮点:双卫设计提升使用效率,避免排队;主卧套间提升居住品质;南北双向阳台,南向阳台观景,北向阳台作为生活阳台,放置洗衣机与烘干机;全屋飘窗+多处储物柜,收纳空间充足。

稀缺复式户型(150-180㎡)

小区少量复式户型,适合追求空间层次感的家庭,以160㎡复式为例:

南京金盾花园户型图

  • 布局解析:下层为公共活动区,含客厅、餐厅、厨房、客卫及南向大阳台;上层为私密休息区,含主卧套间、两次卧、书房及公卫;楼梯采用旋转式设计,节省空间且增加造型感;下层客厅挑高5.2米,通过二楼过道栏杆形成空间层次感。
  • 亮点:动静分区彻底,公共区与休息区完全分层;挑高客厅提升空间感,可做局部 Loft 设计;顶层阁楼带老虎窗,采光通风良好;地下室(约20㎡)可作为储物间或影音室。

户型设计共性优势

除了不同面积段的特色,金盾花园所有户型均具备以下共性优点,这也是其长期受市场认可的关键:

  1. 高得房率与空间利用率:户型设计摒弃不必要的走廊浪费,通过“零死角”布局,让每一平米都发挥价值,例如78㎡两房实际使用面积接近65㎡,远超同面积段楼盘。
  2. 全明设计+优质采光:所有房间均设外窗,客厅、主卧、次卧均为南向或南北向,卫生间通过窗户或排气井保证通风,避免暗卫。
  3. 灵活可变空间:部分户型预留“可变房”,如90㎡两房可将客厅与次卧之间的非承重墙拆除,改为三房,满足家庭结构变化需求。
  4. 细节人性化:入户门为子母防盗门,方便搬运大件家具;窗户采用双层中空玻璃,隔音保温;阳台预留上下水,可方便洗衣机或洗衣柜安装。

楼栋分布与户型选择建议

金盾花园共12栋楼,其中1-6栋为小高层(11层),7-12栋为高层(18层),不同楼栋的户型差异如下:

  • 小高层(1-6栋):以78㎡两房、89㎡两房、125㎡三房为主,得房率更高(约85%),梯户比为1梯2户,私密性好,适合追求低密度的家庭。
  • 高层(7-12栋):涵盖90㎡两房、110㎡三房、140㎡三房及少量复式,梯户比为2梯4户,中间户为全南或东西向,边户为南北通透,边户价格略高但采光通风更优。

选择建议:刚需购房者可优先考虑小高层78㎡两房,总价低且得房率高;改善型家庭推荐高层125㎡三房边户,南北通透+双卫;追求空间感的选择复式,但需注意楼梯对老人小孩的安全性。

相关问答FAQs

Q1:金盾花园的78㎡两房户型适合三代同堂居住吗?
A:78㎡两房更适合小家庭,若三代同堂会略显局促,该户型主卧次卧面积均约12㎡,客厅约18㎡,若需三代同堂,可通过定制家具(如榻榻米床带储物柜)增加收纳,或将阳台改造为儿童活动区,但长期居住建议选择90㎡以上三房,空间更充裕。

南京金盾花园户型图

Q2:复式户型的楼梯设计是否安全?后期能改造吗?
A:金盾花园复式楼梯均为钢结构+实木踏板,护栏高度达1.1米,符合国家安全标准,台阶深度约25cm,坡度较缓,老人小孩上下较安全,后期若需改造,可将旋转楼梯拆除为直梯,但需确认是否破坏承重结构,建议提前咨询物业或专业设计师。