珠山名苑作为区域内备受关注的品质住宅项目,其户型设计以“实用性与舒适性兼顾”为核心,通过科学的空间规划、合理的动线布局以及对细节的精准把控,为不同家庭结构提供了多样化的居住选择,户型图作为选房的重要依据,不仅直观展示了每个户型的面积、朝向、房间分布,更隐含了开发商对居住需求的深刻理解,以下从整体设计理念、分户型解析、核心亮点及适配人群等角度,详细解读珠山名苑的户型图。
整体设计理念:以人为本,空间利用率最大化
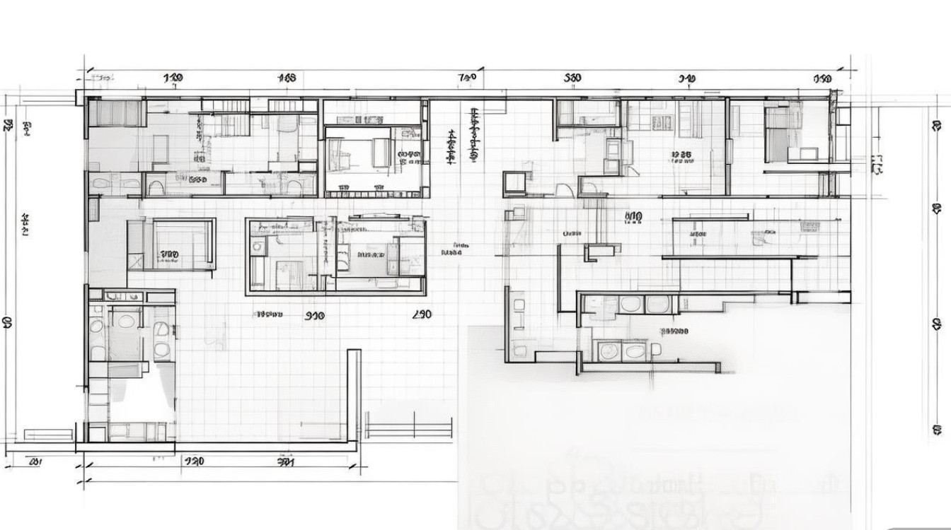
珠山名苑的户型设计围绕“全生命周期居住”理念展开,既考虑了年轻家庭的刚性需求,也兼顾了改善型家庭的长远规划,整体户型图呈现出“方正通透、动静分离、功能分区明确”的特点,通过优化开间与进深比例(多数户型开间达3.6-4.2米,进深控制在10米以内),确保每个空间都能获得充足的采光与通风,项目注重空间利用率,通过“零浪费”设计减少过道、拐角等无效面积,让每一平方米都发挥实用价值,户型图中普遍预留了智能家居接口、中央空调检修口等细节,体现对现代生活趋势的前瞻性考量。
分户型详细解析
两房一厅一卫(约75-88㎡):刚需优选,紧凑实用
该户型面积段主要面向首次置业的年轻夫妇或单身群体,户型图整体呈紧凑方正布局,客厅与次卧分居两侧,中间以厨房、卫生间为核心动线区,实现“动静分离”,客厅开间约3.6米,连接南向阳台(进深1.5米),既保证了采光,又提供了休闲与储物功能;主卧面积约12-15㎡,配备飘窗(赠送一半面积),可改造为梳妆台或储物柜;厨房为U型设计(约5㎡),操作台面充足,且与餐厅相邻,动线流畅,卫生间采用干湿分离设计,预留了洗衣机位置,满足小户型的收纳需求,整体得房率约82%,无过多公摊,性价比突出。
三房两厅两卫(约95-115㎡):主流选择,功能全面
三房户型是珠山名苑的“主力产品”,覆盖面积跨度大,适配多种家庭结构,以105㎡的三房为例,户型图呈现经典的“竖厅”布局:客厅、餐厅、厨房呈南北通透一线,开间约4.2米,连接观景阳台(进深1.8米),视野开阔;主卧为套间设计(约15㎡),配备独立卫生间与步入式衣帽间(赠送面积),保障私密性;次卧均带飘窗,其中一个可改造为儿童房或书房;厨房为L型设计,与餐厅之间采用可推拉玻璃门隔断,既隔绝油烟,又增强空间互动,该户型亮点在于“双卫+双阳台”配置,有效提升家庭居住舒适度,尤其适合有孩家庭或需要频繁接待客人的群体。
四房两厅两卫(约125-140㎡):改善型标杆,尊享舒适
四房户型主要面向三代同堂或二胎家庭,户型图强调“空间尺度与功能分区”,以135㎡的四房为例,采用“大横厅”设计(客厅+餐厅开间约6.5米),搭配全景落地窗,增强空间通透感;主卧为“套房+独立书房”配置(主卧面积约18㎡),书房可灵活改造成茶室或儿童活动区;次卧均带南向阳台或飘窗,其中一个房间设计为“老人房”,紧邻主卧方便照护;厨房为中西双厨设计(约8㎡),中厨用于日常烹饪,西厨岛台可作为简餐区或社交空间;卫生间采用双台盆设计,早晚洗漱互不干扰,户型图中预留了玄关储物柜、设备平台等收纳空间,整体得房率约85%,空间利用率极高。
核心设计亮点
- LDKB一体化设计:多数户型将客厅(Living Room)、餐厅(Dining Room)、厨房(Kitchen)、阳台(Balcony)打通,形成开放式互动空间,增强家庭成员间的交流,同时提升空间感。
- 南北通透+全明户型:所有户型均为南北朝向或南北通透布局,客厅、主卧、餐厅均设采光窗,卫生间通过窗户或通风井实现自然通风,避免暗卫。
- 高拓展性空间:飘窗、阳台、设备平台等区域普遍赠送或半赠送面积(如飘窗赠送一半,阳台全赠送),业主可根据需求改造为书房、储物间等,提升实用性。
- 人性化细节:入户玄关设置感应灯带、紧急呼叫按钮;厨房预留凉霸接口;卧室配备静音门锁;卫生间预留智能马桶插座等,细节处彰显品质。
不同户型的适配人群
- 两房(75-88㎡):适合预算有限的刚需族、新婚夫妇或单身人士,满足“独立空间+基础功能”需求;
- 三房(95-115㎡):适合三口之家、二胎家庭或需要偶尔留宿老人的家庭,兼顾成长性与实用性;
- 四房(125-140㎡):适合三代同堂、多子女家庭或高端改善群体,强调空间独立性与居住舒适度。
珠山名苑户型核心参数对比表
户型类型 | 面积区间(㎡) | 房间配置 | 朝向 | 核心特色 | 推荐人群 |
---|---|---|---|---|---|
两房一厅一卫 | 75-88 | 2室1厅1卫 | 南北通透 | 飘窗赠送、紧凑实用 | 年轻刚需、单身 |
三房两厅两卫 | 95-115 | 3室2厅2卫 | 南北通透 | 横厅设计、主卧套间 | 三口之家、改善型 |
四房两厅两卫 | 125-140 | 4室2厅2卫 | 南北通透 | 大横厅、中西双厨、独立书房 | 三代同堂、高端改善 |
相关问答FAQs
问题1:珠山名苑的三房户型(约105㎡)是否适合三代同堂居住?
解答:该三房户型在空间设计上可适配三代同堂需求:主卧套间保障老人或父母的私密性,次卧靠近客厅方便孩子活动,且双卫设计可避免早晚洗漱拥挤,若需更灵活的空间,可将其中一个次卧与阳台之间的非承重墙拆除,改造成“老人房+阳台”的半开放空间,增加老人活动区域,客厅与餐厅一体化的设计便于家庭互动,整体舒适度较高,但若追求更完全的独立空间,建议考虑四房户型。
问题2:户型图中的“赠送面积”是否合规?实际使用中会有风险吗?
解答:珠山名苑的赠送面积主要包括飘窗(结构内,不计算产权面积)、阳台(按投影面积一半计算)等,均符合国家《建筑工程建筑面积计算规范》,不存在违规风险,飘窗通常设计为“凸窗”,内侧高度达0.9米以上,可正常放置家具;阳台为全赠送,可封装为室内空间,但需注意,封装阳台需提前向物业申请,并遵守小区统一规划,避免影响建筑外观,整体而言,赠送面积在提升实用性的同时,产权清晰,风险较低。