荣盛香榭兰庭二期作为区域内的改善型住宅项目,其户型设计充分考虑了居住者的功能需求与舒适体验,从空间布局到细节打磨均展现出较高的人性化标准,以下从项目概况、户型详解、设计亮点及实用建议等方面展开分析,帮助读者全面了解该项目的户型特色。

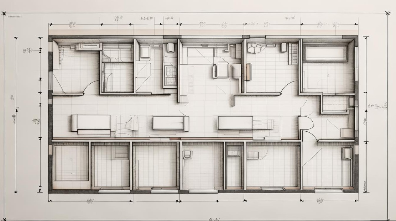
荣盛香榭兰庭二期户型图

项目概况

荣盛香榭兰庭二期位于城市核心发展板块,周边交通路网发达,毗邻地铁X号线(规划中)及多条城市主干道,出行便捷性高,项目配套成熟,周边覆盖优质学校(如XX实验小学)、商业综合体(XX广场)及医疗资源(XX医院),满足全生命周期生活需求,作为荣盛深耕区域的升级之作,二期产品在户型设计上更注重空间利用率与居住舒适度的平衡,主力户型覆盖85-145㎡,涵盖两居至四居,满足新婚家庭、三口之家及三代同堂等不同家庭结构的居住需求。

户型图详解

荣盛香榭兰庭二期户型设计以“方正实用、动静分区、采光通透”为核心原则,以下为部分主力户型的详细分析(数据仅供参考,具体以开发商实际交付为准):

两居户型(约85-95㎡)

  • 户型特点:整体布局紧凑,无面积浪费,适合新婚夫妇或投资型客户。
  • 空间解析
    • 客餐厅一体设计,连接南向阳台,增强空间通透性;
    • 主卧带飘窗,提升采光与视野;
    • 次卧靠近卫生间,方便日常使用;
    • 厨房采用“L型”布局,操作动线流畅。
  • 朝向:主流为南向或东南向,保证主要居住空间采光。

三居户型(约105-125㎡)

  • 户型特点:功能分区明确,兼顾舒适度与实用性,是三口之家的主流选择。
  • 空间解析
    • 南向三面宽设计(部分户型),客厅及双卧室朝南,采光充足;
    • 主卧套间设计(含独立卫生间),保障主人隐私;
    • 北向书房可根据需求改造为儿童房或储物间,灵活性高;
    • 客餐厅连接阳台,形成“LDK”(客厅、餐厅、厨房)一体化空间,增强家庭互动。
  • 朝向:南北通透户型占比高,空气对流佳。

四居户型(约135-145㎡)

  • 户型特点:大面宽、短进深,适合三代同堂或改善型家庭,强调居住品质。
  • 空间解析
    • 四开间朝南(部分户型),南向面宽达12-14米,阳光覆盖全天;
    • 双卫设计(主卫+客卫),避免早晚高峰冲突;
    • 独立家政间(或储藏室),解决杂物收纳问题;
    • 主卧配备步入式衣帽间及飘窗,提升居住尊贵感。
  • 朝向:以南北通透为主,部分边户拥有东/西向景观视野。

主力户型参数速查表

户型类型 面积区间(㎡) 主力朝向 主要特点 适合人群
两居 85-95 南/东南 布局紧凑,无浪费 新婚夫妇、投资者
三居 105-125 南北通透 动静分区,功能齐全 三口之家
四居 135-145 南北/东向 大面宽,双卫设计 三代同堂、改善型

户型设计亮点

方正实用,空间利用率高

所有户型均采用“方正”设计,避免异形空间导致的面积浪费,三居户型的得房率普遍达80%-82%,高于行业平均水平,墙角多为直角,家具摆放更灵活。

动静分区,居住互不干扰

卧室集中分布于户型内侧,客厅、餐厅等活动区靠近入户门,形成“动区-静区”分离,以125㎡三居为例,主卧与次卧位于户型北侧,客厅、厨房位于南侧,即使家庭中有成员早出晚归,也不会影响他人休息。

荣盛香榭兰庭二期户型图

采光通风优化,健康舒适

南向大面宽设计+双阳台(部分户型)是项目的核心亮点,135㎡四居户型,南向客厅阳台宽度达6.8米,连接次卧阳台,形成“穿堂风”,夏季通风效果显著;冬季则因多房间朝南,日照时长增加,减少潮湿感。

细节收纳,解决生活痛点

玄关、卧室、厨房均预留充足收纳空间:玄关柜进深35cm(可放20寸行李箱+鞋类),主卧衣柜深度60cm(符合冬季衣物悬挂需求),厨房吊柜高度70cm(避免碰头),细节设计贴合实际生活需求。

景观视野最大化

部分高楼层户型(尤其是东/西向边户)可俯瞰小区中央园林或城市景观,阳台飘窗设计进一步延伸视野,提升居住幸福感。

选择户型的实用建议

  1. 按家庭结构选户型:新婚或单身可选两居,控制成本;三口之家建议三居,满足孩子成长需求;三代同堂优先选四居,双卫+独立空间保障隐私。
  2. 关注朝向与楼层:南向户型采光最佳,中间楼层(6-12层)兼顾景观与噪音,顶楼需注意防水,底楼关注潮湿与隐私。
  3. 看户型图重点看“三线”
    • 承重墙线:实线为承重墙,不可拆改;虚线为非承重墙,可灵活调整;
    • 尺寸线:重点关注开间(客厅≥3.5米,主卧≥3.3米)、进深(不宜超过开间2倍,避免暗室);
    • 管道线:厨房、卫生间的管道位置需提前确认,避免后期装修遮挡。

相关问答FAQs

问题1:荣盛香榭兰庭二期有哪些适合三代同堂的户型?
答:适合三代同堂的户型主要为135-145㎡四居户型,这类户型通常具备以下特点:①双卫设计(主卫+客卫),避免早晚使用冲突;②主卧套间(含独立卫生间+衣帽间),保障长辈隐私;③南向次卧带飘窗,适合孩子居住;④独立家政间或储藏室,可收纳老人常用物品,部分户型还配备北向生活阳台,方便晾晒或种植绿植,提升实用性。

荣盛香榭兰庭二期户型图

问题2:看户型图时需要重点关注哪些尺寸数据?
答:看户型图时需重点确认以下尺寸:①开间(房间宽度):客厅开间建议≥3.5米(保证沙发、电视柜摆放),主卧开间≥3.3米(放下1.8米床+两个床头柜);②进深(房间深度):不宜超过开间2倍(如开间3.5米,进深≤7米),否则影响采光;③层高:净高建议≥2.9米(避免压抑感);④门窗尺寸:阳台门宽度≥1.8米(保证通风),卧室窗宽度≥1.2米(满足采光标准),还需关注厨房操作台宽度(≥60cm)、卫生间净尺寸(淋浴区≥90cm×90cm)等细节。