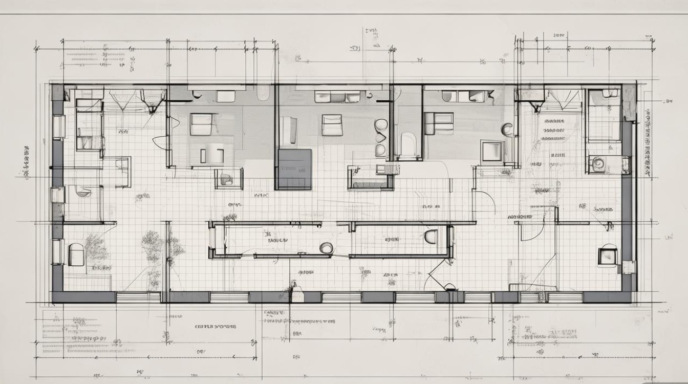
金马熙院作为区域内备受关注的品质住宅项目,其户型设计以“空间适配生活场景”为核心理念,充分兼顾不同家庭结构的居住需求,项目户型涵盖建面约75-143㎡的两房至四房产品,通过科学规划、合理布局,实现空间利用率与居住舒适度的双重提升,为业主打造兼具实用性与功能性的理想居所。
在户型规划上,金马熙院注重“动静分区”与“公私分离”,例如建面约89㎡的三房两厅一卫户型,整体采用经典的竖厅设计,客餐厅一体,连接南向约6.2米宽景阳台,既保证了空间的通透感,又延伸了生活场景,厨房为U型操作台,预留冰箱位,动线流畅;主卧带飘窗,可改造为梳妆区或休闲角,次卧紧凑实用,适合儿童房或老人房,北向生活阳台则兼顾洗衣与储物功能,该户型总价可控,适合刚需首次置业或年轻家庭过渡。
针对改善型需求,建面约128㎡的四房两厅两卫户型堪称“全能型选手”,入户设计独立玄关,配备收纳柜与鞋柜,满足归家整理需求;客餐厅面宽达5.1米,连接南向大阳台,采光视野俱佳;LDK客餐厨一体化设计,增强家人互动,同时让空间更显开阔,主卧为套间设计,配备独立卫浴与步入式衣帽间,次卧均带飘窗,其中一个房间可灵活改造为书房或茶室,满足二胎家庭或三代同堂的居住需求,该户型南北通透,全屋明厨明卫,通风条件优异。
建面约143㎡的四房两厅两卫户型则主打“改善舒居”,整体空间尺度更为阔绰,客厅面宽达6.3米,搭配270度转角飘窗,将外部景观引入室内;主卧配备独立衣帽间与双台盆卫浴,提升居住私密性与舒适度;次卧均预留独立储物空间,北向多功能房可作为影音室或健身房,满足多元化生活场景,该户型注重细节打磨,如窗户采用三层中空玻璃,有效降噪保温;卫生间干湿分离设计,提升使用效率。
为更直观展示户型特点,以下为部分主力户型关键参数对比:
户型编号 | 建筑面积(㎡) | 房间配置 | 客厅开间(m) | 主卧开间(m) | 特色功能 |
---|---|---|---|---|---|
A-89 | 89 | 三房两厅一卫 | 2 | 6 | 南向宽景阳台、U型厨房、飘窗主卧 |
B-128 | 128 | 四房两厅两卫 | 1 | 8 | LDK一体化、主卧套间、南北通透 |
C-143 | 143 | 四房两厅两卫 | 3 | 2 | 转角飘窗、独立衣帽间、多功能房 |
金马熙院户型图的另一大亮点是“空间可变性”,多数户型通过拆改非承重墙,可灵活调整房间布局,例如89㎡户型可将客厅与阳台部分区域打通,扩大公共空间;128㎡户型的多功能房可改为儿童游乐区或老人房,适应家庭不同阶段的需求,项目所有户型均采用全明设计,确保每个房间都有直接采光与通风,避免暗房带来的压抑感。
FAQs
-
问:金马熙院有哪些户型适合刚需家庭?
答:建面约75-89㎡的两房、三房户型适合刚需家庭,如89㎡三房两厅一卫,总价友好,空间紧凑实用,满足二人世界或三口之家的居住需求,且后期流通性较强。 -
问:四房户型的书房可以改造为其他功能吗?
答:可以的,金马熙院四房户型的书房多为灵活空间,无承重墙限制,可根据家庭需求改造为儿童房、茶室、健身房或储物间,实现空间的高效利用。